Zwickau:
Attraktive drei-Zimmer-Wohnung zu verkaufen!
Objekt-Nr.: DL-W-008.2

Außeansicht

Flur

Flur

Wohnzimmer

Schlafzimmer

Kinderzimmer

Esszimmer

Küche

Badezimmer

Balkon










Preis:
130.000 €
Wohnfläche ca.:
88 m²
Zimmeranzahl:
3
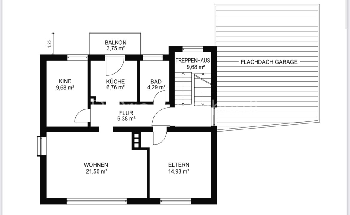
Diese helle 3-Zimmer-Wohnung bietet auf ca. 88 m² eine großzügige und durchdachte Raumaufteilung.
Sie verfügt über ein geräumiges Wohnzimmer, zwei vielseitig nutzbare Zimmer sowie eine separate Küche.
Der Balkon lädt zum Entspannen ein und erweitert den Wohnraum ins Freie.
Ein modernes Badezimmer sowie ein praktischer Kellerraum sorgen für zusätzlichen Komfort und Stauraum.
Die Wohnung eignet sich ideal für Paare, kleine Familien oder Berufspendler, die eine großzügige und gut gelegene Wohnlösung suchen.
Die Osterweihstraße 2 befindet sich in zentraler Lage von Zwickau, im Stadtteil Mitte-Nord.
In unmittelbarer Nähe gibt es zahlreiche Einkaufsmöglichkeiten, Restaurants und Dienstleister.
Der öffentliche Nahverkehr ist hervorragend angebunden – Bus- und Straßenbahnhaltestellen sind schnell erreichbar und bieten eine gute Verbindung in die Innenstadt sowie zu anderen Stadtteilen.
Auch die Westsächsische Hochschule Zwickau liegt in der Nähe, was die Lage besonders attraktiv macht.
Wohnungstyp: Etagenwohnung
Etage: 1
Provisionspflichtig: nein
Nutzfläche ca.: 88 m²
Bad: Wanne
Anzahl Schlafzimmer: 2
Anzahl Badezimmer: 1
Balkon: 1
Garten: ja
Keller: ja
Umgebung: Apotheke, Bahnhof, Bus, Einkaufscenter, Einkaufsmöglichkeit, Kindergarten, Park, Spielplatz
Möbliert: nein
Letzte Modernisierung/ Sanierung: 1995
Qualität der Ausstattung: normal
Baujahr: 1900
Mieteinnahmen p.a.: 5.700 €
Bodenbelag: Laminat
Zustand: teilsaniert
Energieklasse: D
Heizung: Zentralheizung
Befeuerungsart: Gas
Energieausweistyp: Bedarfsausweis - gültig vom 02.09.2017 bis 01.09.2027
Energieeffizienz-Klasse: D
Baujahr laut Energieausweis: 1900
Bei Abschluss eines Kaufvertrages wird keine Vermittlungs-/ Nachweisprovision auf den Kaufpreis vom Käufer fällig.
Die von uns gemachten Informationen beruhen auf Angaben des Verkäufers bzw. der Verkäuferin. Für die Richtigkeit und Vollständigkeit der Angaben kann keine Gewähr bzw. Haftung übernommen werden. Ein Zwischenverkauf und Irrtümer sind vorbehalten.
Wir weisen auf unsere Allgemeinen Geschäftsbedingungen hin. Durch weitere Inanspruchnahme unserer Leistungen erklären Sie die Kenntnis und Ihr Einverständnis.
Das könnte Ihnen auch gefallen

D´Oria & Lenhardt UG (haftungsbeschränkt)
Herr Paolo D'Oria
Prof.-Messerschmitt-Straße3a
85579 Neubiberg
Büro: +49 89 23042616
Mobil: +49 176 41638016






















